Skip To Content

29590 Fir St

Rainier, OR 97048
  • $299,999
  • STATUS: Active
  • MLS #: 416153852
UPDATED: 5 min ago
$299,999
  • 3
    BEDS
  • 0.13
    ACRES
  • 2
    BATHS
  • 0
    1/2 BATHS
  • 1,264
    SQFT
  • $237
    $/SQFT
Neighborhood:
Type:
Manufactured Home
Built:
1983
County:

School Information

Elementary School:
Middle School:
High School:

Description

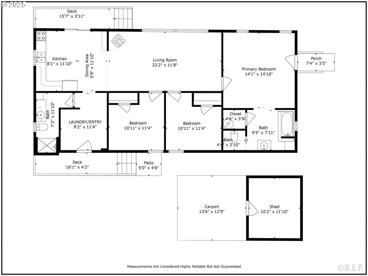
This manufactured home offers beautiful Columbia River views, including sightlines to the Lewis and Clark Bridge spanning between Rainier, Oregon and Longview, Washington.Inside, you'll find 1,264 square feet of living space with three bedrooms and two bathrooms. The home has been updated with a new FURNACE, flooring, carpet, interior and exterior paint, and modern fixtures. The open living room features a woodstove for warmth and plenty of windows that bring in natural light, with a slider door leading to one of two decks. The kitchen includes stainless steel appliances and a convenient buffet area with an eat-up nook.The primary bedroom offers backyard access, a bathroom with a soaking tub, and a walk-in closet. Two additional bedrooms and a full guest bathroom provide space for family or visitors. A bright laundry room and mudroom round out the floor plan. Outside, a new carport and outbuilding offer additional storage.The property's location provides access to water activities including boating, kayaking, and fishing on the Columbia River. Grocery Outlet and everyday services are just minutes away in Rainier, while Longview, Washington offers additional shopping, dining, and hospital facilities nearby. Rainier City Park provides local recreation, and the area is served by community schools including Rainier High School.Rainier is a small riverside community along the Columbia River where walking trails and local events are part of the lifestyle—including a notable Fourth of July fireworks show on the river. Portland sits about an hour away, as does the Oregon Coast. Schedule a tour!

Monthly Payment Calculator



Listing content is copyright © 2026 RMLS™, Portland, Oregon. The content relating to real estate for sale on this web site comes in part from the IDX program of the RMLS™ of Portland, Oregon. Real estate listings held by brokerage firms other than Cano Real Estate are marked with the RMLS™ logo, and detailed information about these properties includes the names of the listing brokers. Data last updated 2026-02-15T03:50:16.487.Data deemed reliable but not guaranteed. Some properties which appear for sale on this web site may subsequently have sold or may no longer be available. IDX information is provided exclusively for consumers’ personal, non-commercial use, and may not be used for any purpose other than to identify prospective properties consumers may be interested in purchasing. All information provided is deemed reliable but is not guaranteed accurate by RMLS™ or Cano Real Estate and should be independently verified.
www.canorealestate.com/homes/168128815
Print Image

29590 Fir St Rainier, OR 97048

  • Price: $299,999
  • Status: Active
  • On Site: Days
  • Updated: 5 min ago
  • MLS #: 416153852
3
Beds
2
Baths
0
½ Baths
0.13
Acres
1,264
SQFT
$237
$/SQFT
1983
Built
Neighborhood:
155-Columbia County
County:
Columbia
Area:
155-Columbia County
Elementary School:
Hudson Park
Middle School:
Rainier
High School:
Rainier
Property Description
This manufactured home offers beautiful Columbia River views, including sightlines to the Lewis and Clark Bridge spanning between Rainier, Oregon and Longview, Washington.Inside, you'll find 1,264 square feet of living space with three bedrooms and two bathrooms. The home has been updated with a new FURNACE, flooring, carpet, interior and exterior paint, and modern fixtures. The open living room features a woodstove for warmth and plenty of windows that bring in natural light, with a slider door leading to one of two decks. The kitchen includes stainless steel appliances and a convenient buffet area with an eat-up nook.The primary bedroom offers backyard access, a bathroom with a soaking tub, and a walk-in closet. Two additional bedrooms and a full guest bathroom provide space for family or visitors. A bright laundry room and mudroom round out the floor plan. Outside, a new carport and outbuilding offer additional storage.The property's location provides access to water activities including boating, kayaking, and fishing on the Columbia River. Grocery Outlet and everyday services are just minutes away in Rainier, while Longview, Washington offers additional shopping, dining, and hospital facilities nearby. Rainier City Park provides local recreation, and the area is served by community schools including Rainier High School.Rainier is a small riverside community along the Columbia River where walking trails and local events are part of the lifestyle—including a notable Fourth of July fireworks show on the river. Portland sits about an hour away, as does the Oregon Coast. Schedule a tour!
Exterior Features

Architectural Style Double Wide Manufactured Attached Garage YN No Exterior Description Vinyl Siding Exterior Features Deck Fenced Outbuilding RVParking Yard Foundation Details Block Skirting Garage Type Carport Detached Lot Features Gentle Sloping Level Trees Parking Features Carport Driveway Parking Total 0 Road Surface Type Paved Roof Composition View Description River Seasonal Territorial View YN Yes Water Body Name Columbia River

Interior Features

Appliances Dishwasher Free Standing Range Free Standing Refrigerator Plumbed For Ice Maker Range Hood Basement Crawl Space Bathrooms Full Lower Level 0 Bathrooms Full Main Level 2 Bathrooms Full Upper Level 0 Bathrooms Partial Lower Level 0 Bathrooms Partial Main Level 0 Bathrooms Partial Upper Level 0 Cooling None Cooling YN No Fireplace Features Wood Burning Heating Forced Air Heating YN Yes Interior Features Laminate Flooring Laundry Wallto Wall Carpet Lower Level Area Total 0 Main Level Area Total 1264 Primary Bedroom Level Main Upper Level Area Total 0 Window Features Vinyl Frames

Property Features

Association YN No Bank Owned YN No Fuel Description Electricity Green Certification YN No Home Warranty YN No Hot Water Description Electricity IDXAddress Display YN Yes Internet Service Type Cable Listing Terms Cash VALoan New Construction YN No Property Attached YN No Property Condition Resale Property Sub Type Manufactured Homeon Real Property RVDescription RVParking RVBoat Storage Senior Community YN No Sewer Public Sewer Short Sale YN No Tax Annual Amount 1996.47 Tax Year 2024 Water Source Public Water

Listing provided courtesy of Soldera Properties, Inc: .


Listing content is copyright © 2026 RMLS™, Portland, Oregon. The content relating to real estate for sale on this web site comes in part from the IDX program of the RMLS™ of Portland, Oregon. Real estate listings held by brokerage firms other than Cano Real Estate are marked with the RMLS™ logo, and detailed information about these properties includes the names of the listing brokers. Data last updated 2026-02-15T03:50:16.487.Data deemed reliable but not guaranteed. Some properties which appear for sale on this web site may subsequently have sold or may no longer be available. IDX information is provided exclusively for consumers’ personal, non-commercial use, and may not be used for any purpose other than to identify prospective properties consumers may be interested in purchasing. All information provided is deemed reliable but is not guaranteed accurate by RMLS™ or Cano Real Estate and should be independently verified.
 
https://bt-photos.global.ssl.fastly.net/portland/1280_boomver_1_416153852-3.jpg https://bt-photos.global.ssl.fastly.net/portland/1280_boomver_1_416153852-3.jpg https://bt-photos.global.ssl.fastly.net/portland/1280_boomver_1_416153852-3.jpg
Logo
Cano Real Estate
415 E Mill Plain Blvd
Vancouver WA, 98660